Italiano
3.120.000 CHF

2525_Lugano, app. 5.5 locali in palazzo d'epoca

Appartamento in vendita • Lugano - Via Lucchini
Nel cuore di Lugano, in una delle vie piu' belle della città, a due passi dal lago e dal parco cittadino, vicino a tutti i servizi e alle varie infrastrutture, proponiamo in palazzina d'epoca ultimo appartamento disponibile, 5.5 locali di 170 mq.

L’attuale edificio storico è oggetto di una ristrutturazione integrale.
Verranno conservati e restaurati tutti gli elementi decorativi tipici dei palazzi di fine ‘800 – primi ‘900 ma con l’integrazione di tutte le comodità e le tecnologie moderne (ascensore interno, termopompa geotermica, distribuzione del calore mediante serpentine a pavimento, climatizzazione canalizzata, ecc…).

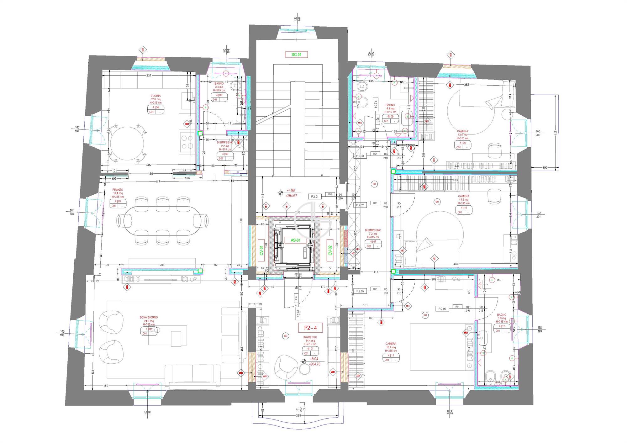
L'immobile presenta il seguente layout:
accesso diretto in appartamento tramite ascensore, disimpegno di ingresso con armadi a muro, spazioso soggiorno, cucina abitabile con penisola, studio con uscita sul balcone, tre camere da letto di cui una con balcone, due bagni completi, camera matrimoniale con bagno en suite, lavanderia in appartamento; tutti i bagni presentano una finestra.
Cantina al piano inferiore, posto auto esterno in cortile privato a CHF 80'000.- cadauno.



Caratteristiche principali
Codice
Rif. 2526_X
Città
Lugano
Categoria
Appartamento
Prezzo
3.120.000 CHF
Locali
5,5
Camere
5
Bagni
3
Mq
170
Balconi
2
Mq Balcone
5,7
Piano
2
Classe energetica
Non applicabile
Stato Immobile
Nuovo
Grado
Signorile
Posizione
Centro
Panorama
Vista Aperta
Lati Liberi
4
Giardino
No
Arredi
Solo Cucina
Tipo Soggiorno
Doppio
Tipo Cucina
Abitabile
Riscaldamento
Autonomo
Tipo Riscaldam.
Pompa di Calore
Tipo Impianto
Pavimento
Raffrescamento
Pavimento
Infissi
Legno
Serramenti
Nuovo
Pavim. Giorno
Parquet
Pavim. Notte
Parquet
Pavim. Cucina
Parquet
Accesso interno disabili
Pieno accesso

Accessori: Aria Condizionata, Armadio a Muro, Ascensore, Doppi Vetri, Geotermia, Lavanderia, Passaggio Automobilistico, Passaggio Pedonale, Porta Blindata, Tripli Vetri, Video Citofono

Distanze
Posizione
Lago150 m
Parco pubblico150 m
Mappa
Via Lucchini , Lugano (TI)
Richiedi informazioni
Invia
Condividi su
Cookie preference